欢迎光临苏州爱尔玛特环保节能科技有限公司!联系电话:13776178696
网站地图
中文
|
ENG
网站首页
翅片管系列
换热器系列
翅片管规格
应用领域
新闻资讯
关于我们
联系我们
行业资讯
Product categories
行业资讯
公司新闻
行业资讯
问题解答
联系我们
苏州爱尔玛特环保节能科技有限公司
手机:0512-53371508
电话:0512-53371508
联系人:13776178696
邮箱:aiermat01@126.com
地址:太仓市城厢镇常胜北路33号10幢
您的位置:
首页
>>
新闻资讯
>>
行业资讯
6.2热管式电子元件散热器的设计
日期:2021-09-10 08:21:07点击:396
6.2
热管式电子元件散热器的设计
62.1结构特点
热管式散热器在电子元器件冷却中的应用日益受到重视,其结构特点如图
6. 2.
1
所 示。热管的蒸发段与方形基板结合在一起,将电子元件紧密安装在方形基板上,蒸发段通 过方形基板吸收的热量,在凝结段通过翅片将热量传给外部的空气。
热管式散热器的传热特点是:依靠热管内部介质的相变传热,热管本身的热阻小,等 温性好;此外,凝结段可自由伸缩,方便布置翅片结构。
凝结段外面的翅片多釆用方形翅片,如图
6. 2.
2
所示。翅片是靠紧密配合工艺套装 在热管外表面上。
而凝结段上的翅片材质多采用铝。翅片厚度约
0.5 mm,
方形翅片的边长约为
30~
50
mm,
翅片节距很小,约
3
mrn
o
热管式电子元件散热器的结构特点如图
6. 2.
3
所示口
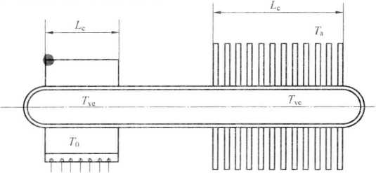
图6. 2.3热管式电子元件散热器
上一篇:
第6章 电子元器件翅片式散热器
下一篇:
空冷器的设计参考
翅片管系列
激光焊翅片管
钢制翅片管
螺旋翅片管
无缝翅片管
换热翅片管
换热器系列
翅片管换热器
内翅片管换热器
大棚翅片管散热器
镀锌翅片管散热器
大型翅片管散热器
翅片管规格
翅片管规格
微信公众号
13776178696
业务经理:0512-53371508/黄经理
友情链接
自动点胶机
苏州印刷
介质损耗测试仪
蒙古包报价
推拉棚
蒙古包价格
耐力板
焊锡机
PC板加工
桐江阀门
流量计
PC板
雨棚
PC板
滤袋
高压风机
Copyright © 2020-2023 苏州爱尔玛特环保节能科技有限公司 All rights reserved 联系人:黄经理 地址:太仓市城厢镇常胜北路33号10幢 备案号:
苏ICP备20027618号
技术支持:
核心词专业优化
返回顶部
13776178696
0512-53371508
微信公众号